Architect - Hetreed Ross Architects
Structural Engineer - Precisian
Geotechnical Engineer - Integrale
Services Engineer - Watt Design
Images - Hetreed Ross Architects and Precisian
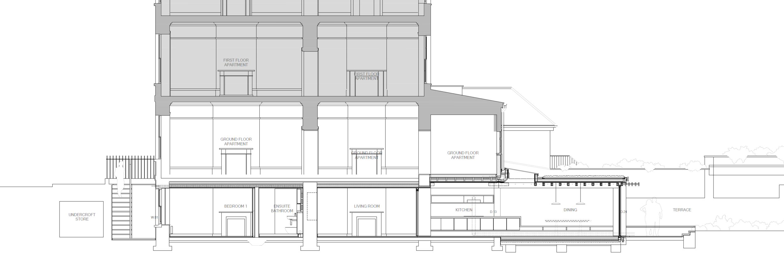
Hetreed Ross architects have designed a new house to Passivhaus standards on a secluded site in Combe Down. Our initial desk study and review of Lidar data identified that the rear garden site was part of an infilled quarry adjacent to the Combe Down stone mines. A bore hole site investigation confirmed the depth of the quarry fill to be 8 to 10 metres.
The foundation solution developed was a piled raft set on grouted steel tubular piles rock drilled into the underlying limestone. A drainage easement overlapped the western boundary and piles were located to avoid the exclusion zone requiring the RC raft to cantilever over. A finite element model of the raft allowed deflections of the structure to be checked and raft reinforcement optimised.
To achieve high thermal insulation and airtightness standards a timber frame superstructure was selected combined with rubble stone walls to the east and west elevations. Internally a partial steel frame has been introduced to create open plan living areas.
A former mine entrance was found in the rock face on the rear boundary during initial site investigation and this was stabilised and infilled prior to piling with a rock fence installed to protect the rear face of the property.